Komplettsanierung 2-Zimmer-Wohnung in Bochum-Weitmar
- 2 Zimmer
- 8 Gewerke von uns koordiniert
- 6 Wochen Bauzeit
Projekt-Steckbrief
Feuerbachstr., Bochum-Weitmar – fertiggestellt 2025
Wohnfläche
48 m²
Zimmer
2
Stockwerk
1. OG
Bauzeit
6 Wochen
Jahr
2025
Typ
Mietwohnung
48 m² im 1. OG eines Mehrfamilienhauses in Bochum-Weitmar. Der Vermieter wollte den Altbau-Charakter erhalten und gleichzeitig alles technisch auf Stand bringen. Die Holzdielen in Wohnzimmer, Schlafzimmer und Flur wurden geschliffen und versiegelt, in der Küche kam Vinyl als robuste Alternative. Das Bad wurde komplett kernsaniert mit bodengleicher Dusche, die Elektrik inklusive Waschkeller-Anbindung erneuert. Die gesamte Komplettsanierung dauerte 6 Wochen.
Vorher / Nachher
Schieben Sie den Regler – 6 Wochen Arbeit im direkten Vergleich
Wohnzimmer
Holzdielen geschliffen und versiegelt
Küche
Gefällt Ihnen, was Sie sehen?
Ihre Wohnung in Bochum-Weitmar verdient das gleiche Ergebnis
48 m² in 6 Wochen – alles aus einer Hand. Wir beraten Sie kostenlos und erstellen ein verbindliches Festpreisangebot.
Virtueller 3D-Rundgang
Erkunden Sie die sanierte Wohnung interaktiv – bewegen Sie sich frei durch alle Räume. Unten links können Sie über die horizontalen Ebenen zwischen Vorher (oben) und Nachher (unten) wechseln.
Tipp: Nutzen Sie die Matterport-Steuerung, um zwischen den Räumen zu wechseln. Auf dem Smartphone: Finger zum Drehen und Zoomen verwenden.
Überzeugt? Lassen Sie uns über Ihr Projekt sprechen
Kostenlose Erstberatung – unverbindlich und persönlich
8 Gewerke – durchgehend betreut
Jedes Detail dieser Komplettsanierung in Bochum-Weitmar
Böden
Holzdielenboden aufarbeiten mit Altanstrich (Wohnzimmer, Schlafzimmer, Flur). Vinylboden verkleben inkl. Sockelleisten in der Küche. Holzfußleisten 70 mm weiß.
Ratgeber lesen →Bad & Sanitär
Komplette Badmodernisierung (3,5 m²): bodengleiche Dusche, Wand-WC, neuer Waschtisch. Duschvorhangstange Keuco 1000 mm mit Deckenbefestigung.
Ratgeber lesen →Elektrik
Komplette Elektromodernisierung (48 m²): neue Unterverteilung, Durchlauferhitzer elektrisch geregelt (Bad), Untertischgerät (Küche), Wechselsprechanlage, Waschmaschinenanschluss mit Zuleitung zum Waschkeller.
Ratgeber lesen →Wände & Decken
Raufaser tapezieren & streichen: Wände 147 m², Decken 46 m², 15 Fensterlaibungen. Alle Oberflächen in Weiß.
Ratgeber lesen →Türen & Tischler
2 neue Türen mit Zargen und Drückergarnituren (Bad + Schlafzimmer). Wohnungstür gang- und schließbar gemacht. 4 Fenster/Balkontür gangbar gemacht. Sicherheitsdrückergarnitur. Lüftungsgitter Bad.
Heizung
3 neue Kompaktheizkörper Typ 22: Küche (60×100), Wohnzimmer (60×160), Schlafzimmer (60×160). Heizkörpernische geschlossen und gedämmt.
Ratgeber lesen →Demontage & Entkernung
Rückbau: Zählerschrank, 2 Durchgänge (Wohnzimmer/Flur), Fliesenspiegel, Fensterbank, Leichtbauständerwand (Glas-Holz Küchentrennung), Fußleisten.
Balkon
Deckenanstrich Balkon außen.
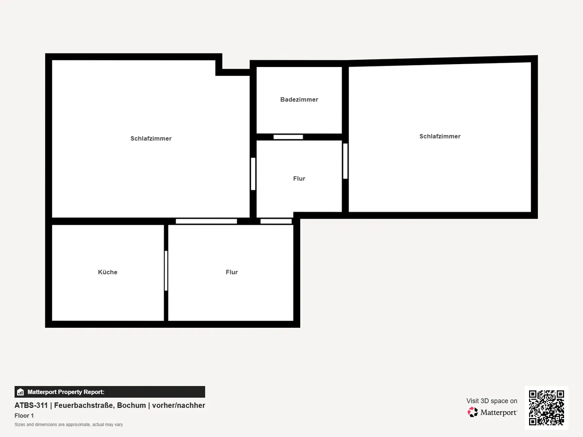
Raumaufteilung
48 m² Nettowohnfläche – 5 Räume
| Raum | Fläche |
|---|---|
| Badezimmer | 3,0 m² |
| Flur | 3,3 m² |
| Küche | 5,7 m² |
| Schlafzimmer | 16,2 m² |
| Kinderzimmer / Schlafzimmer 2 | 14,2 m² |
| Gesamt (netto) | 48 m² |
Grundriss
Raumaufteilung der 48 m² Wohnung
Vorher
Nachher
So läuft eine Komplettsanierung ab
Von der Beratung bis zur schlüsselfertigen Übergabe
Erstberatung
Kostenlose Vor-Ort-Begehung mit Aufmaß und Zustandserfassung aller Räume.
1–2 StundenFestpreisangebot
Verbindliches Angebot mit allen Gewerken, Materialien und Zeitplan.
3–5 WerktageSanierung
Koordination aller Handwerker – ein Ansprechpartner für 8 Gewerke.
6–10 WochenAbnahme & Übergabe
Gemeinsame Begehung, Mängelprotokoll, 3D-Dokumentation der fertigen Wohnung.
1 TagErstberatung
1–2 StundenKostenlose Vor-Ort-Begehung mit Aufmaß und Zustandserfassung aller Räume.
Festpreisangebot
3–5 WerktageVerbindliches Angebot mit allen Gewerken, Materialien und Zeitplan.
Sanierung
6–10 WochenKoordination aller Handwerker – ein Ansprechpartner für 8 Gewerke.
Abnahme & Übergabe
1 TagGemeinsame Begehung, Mängelprotokoll, 3D-Dokumentation der fertigen Wohnung.
Was unsere Kunden sagen
Erfahrungen aus echten Sanierungsprojekten
“ Feuerbachstraße in Bochum. Komplette Badsanierung plus Elektrik im gesamten Objekt erneuert. 66 m². Bauleiter war bei jeder Frage greifbar, die Handwerker zuverlässig. Vier Wochen für Bad und Elektrik – das ist flott.
Lothar S.
Eigentümer, ETW Bochum-Feuerbachstraße
“ Bochum, Feuerbachstraße. Altbau, hohe Decken, Stuck. Wir wollten sanieren, ohne den Charakter zu verlieren. neurealis hat genau das geliefert: modernes Bad, neue Böden, aber der Altbau-Charme blieb. Acht Wochen, Festpreis.
Bärbel N.
Vermieterin, 2 WE Bochum-Feuerbachstraße
“ Feuerbachstraße in Bochum, 80 m². Leerstandssanierung – Wohnung war zehn Jahre nicht gepflegt worden. Böden, Wände, Bad, alles gemacht. neurealis hat einen fairen Preis genannt und geliefert. Sechs Wochen. Wieder vermietet.
Friedhelm A.
Vermieter, MFH Bochum-Feuerbachstraße
Mehr über Wohnungssanierung in Bochum erfahren
Häufige Fragen
Zu diesem Projekt und zur Komplettsanierung generell
Kann man Holzdielenböden im Altbau aufarbeiten statt austauschen?
Ja, in den meisten Fällen. Bei dieser Wohnung haben wir die Holzdielen in Wohnzimmer, Schlafzimmer und Flur geschliffen und neu versiegelt. Der Altbau-Charakter bleibt erhalten, und der Boden sieht wieder aus wie neu. Voraussetzung: Die Dielen dürfen nicht zu stark beschädigt oder verzogen sein. Das prüfen wir bei der Begehung.
Was kostet eine bodengleiche Dusche in einem kleinen Bad?
Bei 3,5 m² Badfläche rechnen Sie mit der kompletten Kernsanierung – also Fliesen, Sanitärobjekte, Abdichtung und Anschlüsse. Eine bodengleiche Dusche allein macht wenig Sinn, wenn der Rest veraltet ist. Den genauen Preis kalkulieren wir nach der Begehung als Festpreisangebot.
Warum wurde ein Durchlauferhitzer statt Zentralheizung für Warmwasser eingebaut?
Die Warmwasserversorgung hängt von der Gebäudeinfrastruktur ab. In diesem Mehrfamilienhaus gab es keine zentrale Warmwasserleitung. Ein elektrisch geregelter Durchlauferhitzer im Bad und ein Untertischgerät in der Küche sind dann die effizienteste Lösung – sofort warmes Wasser, keine langen Leitungswege.
Warum kam in der Küche Vinyl statt Holzdielen zum Einsatz?
Küchen sind Feuchträume. Wasser am Spülbereich, Spritzer beim Kochen – Holzdielen quellen da auf Dauer. Verklebtes Vinyl ist wasserbeständig, pflegeleicht und optisch kaum von Echtholz zu unterscheiden. In Wohn- und Schlafräumen haben wir dagegen bewusst die Originaldielen erhalten.
Wie lange dauert eine Komplettsanierung einer 48 m² Wohnung?
Bei dieser Wohnung waren es 6 Wochen für 8 Gewerke – vom Parkett schleifen über die Bad-Kernsanierung bis zur kompletten Elektrik. Bei kleineren Umfängen geht es schneller, bei aufwändigeren Projekten dauert es entsprechend länger. Den genauen Zeitplan legen wir vor Baubeginn fest.
Was bedeutet „Heizkörpernische dämmen" und warum ist das sinnvoll?
Unter vielen Altbau-Fenstern gibt es Nischen in der Außenwand, in denen die Heizkörper sitzen. Diese Wandstellen sind oft nur halb so dick wie der Rest. Ohne Dämmung geht dort viel Wärme nach draußen verloren. Wir schließen und dämmen diese Nischen, bevor der neue Heizkörper montiert wird.
Brauche ich als Vermieter eine Baugenehmigung für die Sanierung?
Für eine Sanierung im Bestand – also ohne Grundrissänderungen an tragenden Wänden – brauchen Sie keine Baugenehmigung. Bei dieser Wohnung wurde eine Leichtbauwand entfernt, um die Küche offener zu gestalten. Nicht-tragende Wände dürfen ohne Genehmigung verändert werden.
Was passiert mit dem Mieterkeller während der Sanierung?
Bei dieser Wohnung wurde der Waschmaschinenanschluss mit einer neuen Zuleitung zum Waschkeller verlegt. Der Keller selbst bleibt während der Sanierung zugänglich. Arbeiten im Keller – etwa neue Stromleitungen – dauern in der Regel nur 1–2 Tage.
Kann ich mir die Materialien selbst aussuchen?
Auf jeden Fall. Sie wählen Fliesen, Bodenbelag, Armaturen und Farben nach Ihrem Geschmack. Wir beraten bei der Auswahl und zeigen Ihnen Muster. Bei dieser Wohnung hat sich der Vermieter bewusst für den Erhalt der Altbau-Dielen und eine moderne Dusche entschieden.
Saniert neurealis auch Wohnungen in anderen Bochumer Stadtteilen?
Ja. Unser Einzugsgebiet umfasst ganz Bochum, Dortmund, Hagen, Witten, Herdecke, Schwerte und Unna. Die Feuerbachstraße in Weitmar ist eines von mehreren Projekten in Bochum. Weitere Beispiele finden Sie auf unserer Übersichtsseite.
Jede Sanierung wird individuell nach den Wünschen und Entscheidungen unserer Kunden umgesetzt. Materialauswahl, Raumaufteilung und Ausstattung variieren von Projekt zu Projekt. Die gezeigten Beispiele dienen als Orientierung – Ihr Ergebnis gestalten wir gemeinsam.
Weitere Beispielprojekte
Komplettsanierungen im Ruhrgebiet
Bochum-Langendreer
Komplettsanierung 4-Zimmer mit Smart Home
Bochum-Langendreer
Komplettsanierung 4-Zimmer-Familienwohnung
Dortmund-Hörde
Komplettsanierung 3-Zimmer mit Balkonen
Unna-Königsborn
Komplettsanierung 2-Zimmer mit Nikotinabtrag
Dortmund-Huckarde
Kernsanierung 3-Zimmer-Altbau mit OSB-Boden
Bochum-Langendreer
Komplettsanierung 4-Zimmer mit Smart Home
Bochum-Langendreer
Komplettsanierung 4-Zimmer-Familienwohnung
Dortmund-Hörde
Komplettsanierung 3-Zimmer mit Balkonen
Unna-Königsborn
Komplettsanierung 2-Zimmer mit Nikotinabtrag
Dortmund-Huckarde
Kernsanierung 3-Zimmer-Altbau mit OSB-Boden
Bochum-Langendreer
Komplettsanierung 4-Zimmer mit Smart Home
Bochum-Langendreer
Komplettsanierung 4-Zimmer-Familienwohnung
Dortmund-Hörde
Komplettsanierung 3-Zimmer mit Balkonen
Unna-Königsborn
Komplettsanierung 2-Zimmer mit Nikotinabtrag
Dortmund-Huckarde
Kernsanierung 3-Zimmer-Altbau mit OSB-Boden
Ihr Projekt könnte das nächste sein
Kostenlose Erstberatung in Bochum-Weitmar und im Ruhrgebiet. Festpreisangebot innerhalb von 5 Werktagen.
0231 – 58 68 85 60Mo–So 7–20 Uhr erreichbar
Lassen Sie sich jetzt beraten